上海[切换]
打造中国专业公装网站,截止目前已为28.329位用户提供了优质装修服务! | 网站地图 | 上海装修公司咨询电话: 400-877-6528 | 相关热点
三亿(中国)
400-877-6528
热线咨询 400-877-6528
明祺设计·专注办公室装修

好设计×好落地

网上预约 更多折扣
咨询热线:400-877-6528
您的姓名:
您的电话:
详细地址:
今日已152人申请量房
  • 35分钟前  徐小姐已预约   138****0369

  • 1小时前    曾先生已预约   134****8889

  • 19分钟前  刘小姐已预约   182****7899

  • 40分钟前  杨女士已预约   132****6942

  • 58分钟前  陈小姐已预约   137****0909

  • 2小时前    张小姐已预约   131****5893

  • 17分钟前  魏先生已预约   180****1267

  • 26分钟前  杨小姐已预约   186****3256

  • 31分钟前  曹先生已预约   158****2365

  • 4小时前    刘先生已预约   157****2256

  • 51分钟前  王女士已预约   181****3696

立即预约享好礼
免费测量
专业绘测团队,精确测量尺寸
免费设计
金牌设计团队,准确获取报价和方案
免费报价
节省装修预算,保险费用我们承担
免费甲醛测试
专注环保健康,从源头排除污染
一对一专业服务 ×
您也可以直接拨打免费热线电话 021-66797898
当前位置:办公室装修工装效果图

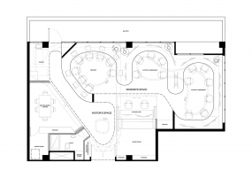
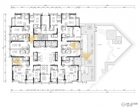
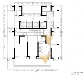
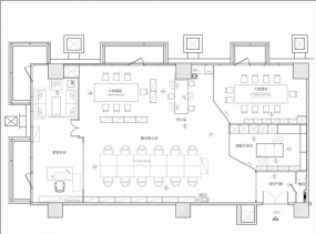
展厅平面图

精选案例/ Featured case
相关推荐/ related suggestion
< 4 5 6 7 8 9 10 11 12 13 14 15 16 17 18 19 >
在线咨询
快速报价
预约设计
返回顶部